11 y 60
Lutteri, Zavala, Avincetto.
 
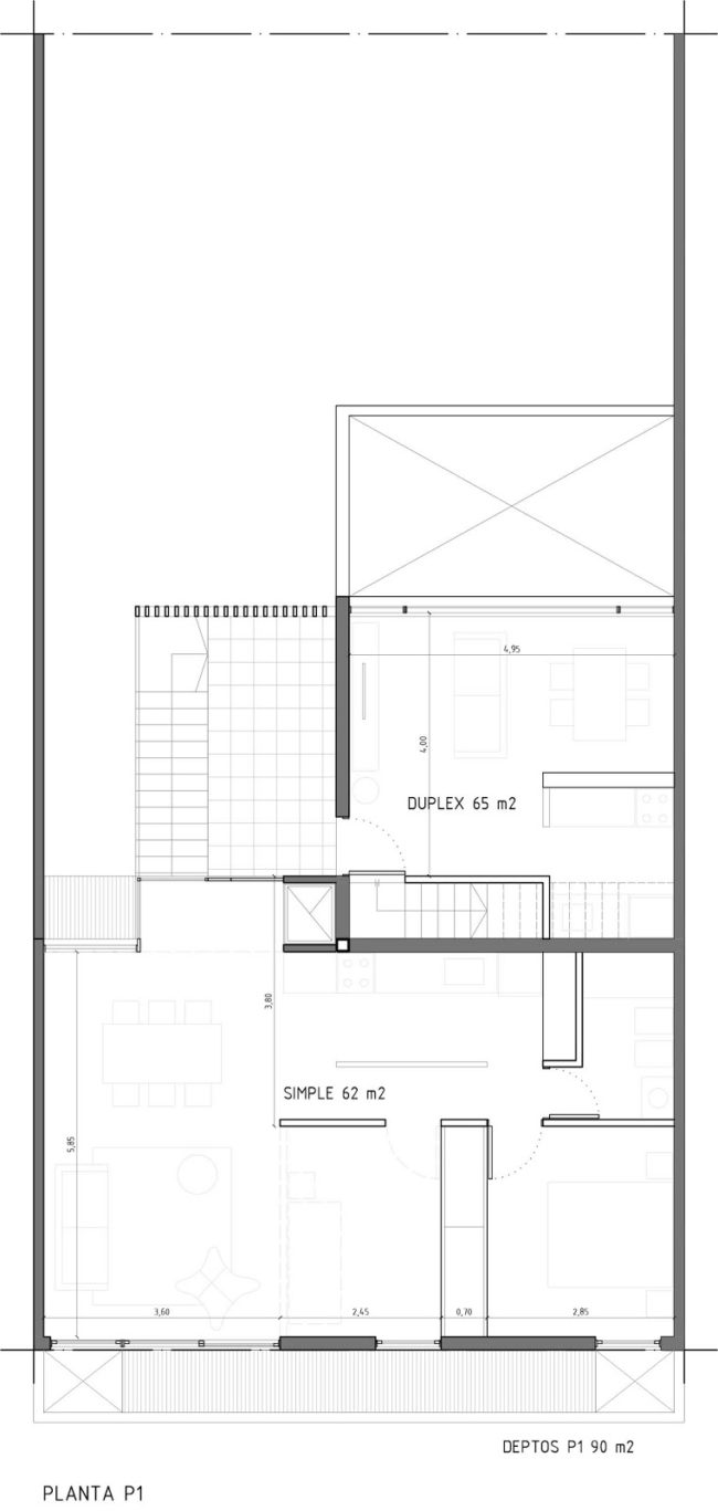
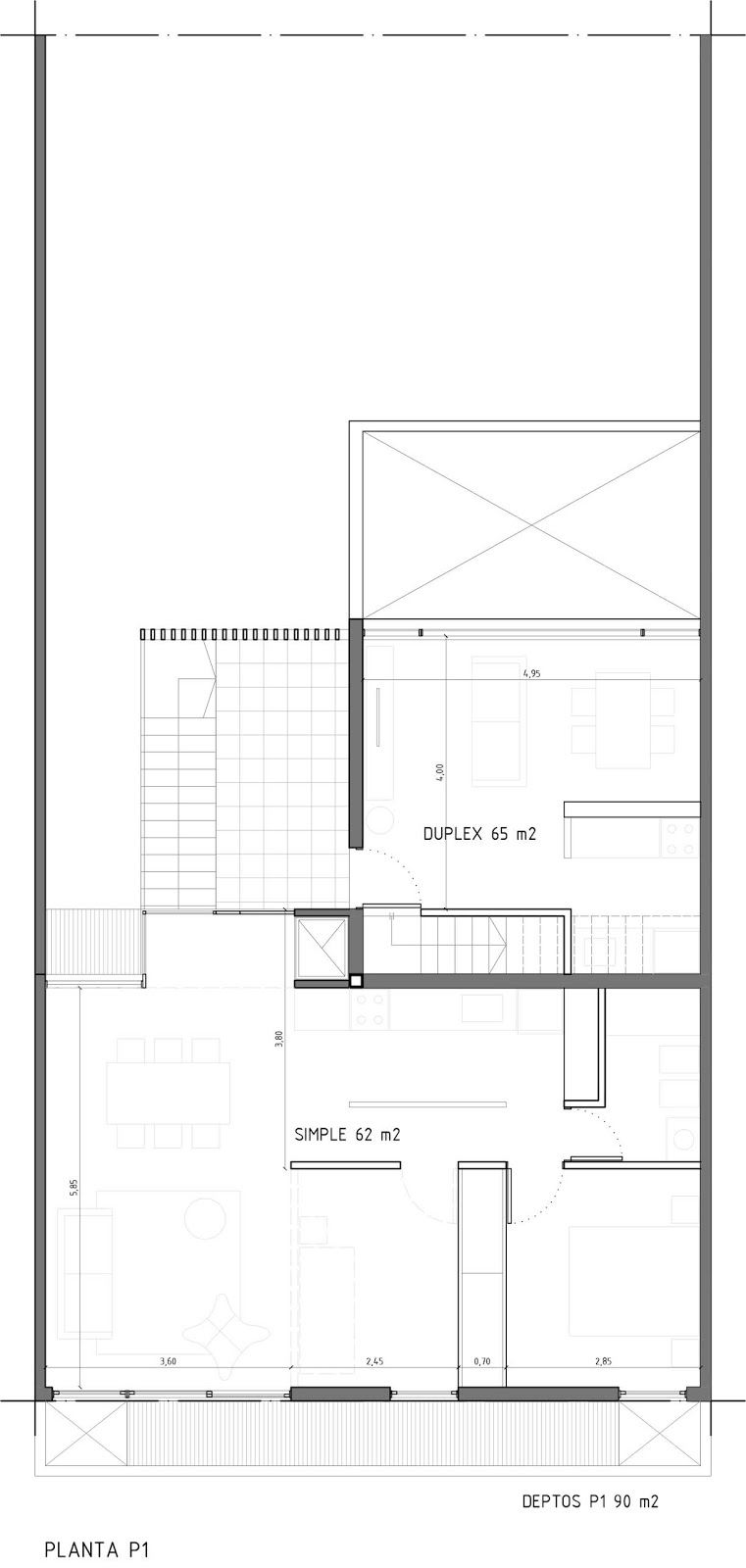
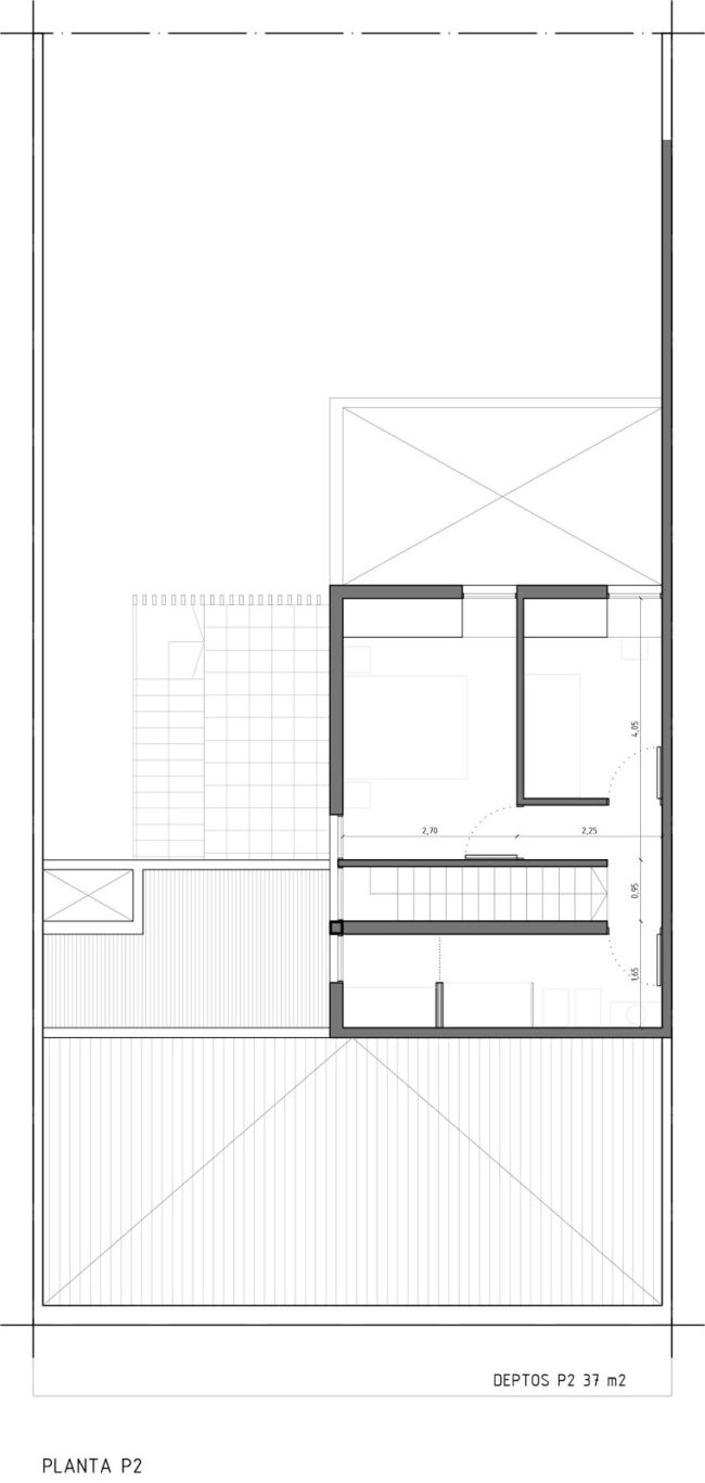
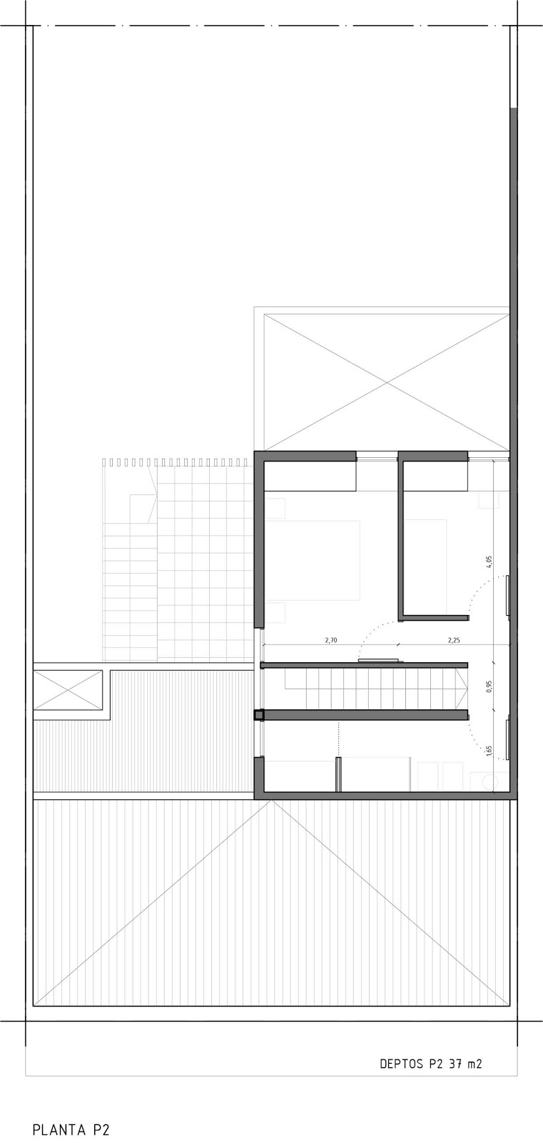
Locales comerciales y departamentos, La Plata, Buenos Aires 2019.